$489,900
For more information regarding the value of a property, please contact us for a free consultation.
421 Ridgeview COURT Lake Mills, WI 53551
4 Beds
2.5 Baths
2,029 SqFt
Key Details
Property Type Single Family Home
Sub Type Contemporary
Listing Status Sold
Purchase Type For Sale
Square Footage 2,029 sqft
Price per Sqft $241
Subdivision Brookstone Meadows
MLS Listing ID 1935232
Style Contemporary
Bedrooms 4
Full Baths 2
Half Baths 1
Year Built 2025
Annual Tax Amount $2
Tax Year 2024
Lot Size 0.280 Acres
Property Sub-Type Contemporary
Property Description
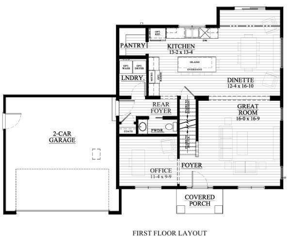
Discover your New Construction dream home, ready in Novemeber, in the sought-after Brookstone Meadows subdivision in Lake Mills! This stunning 4-bedroom, 2.5-bathroom Hayward model home offers the perfect blend of style and functionality with its open-concept first floor featuring luxury vinyl plank (LVP) flooring, a spacious kitchen island, and sleek steel grey cabinets topped with elegant quartz countertops. An inviting office space on the main level adds convenience for remote work or study. Upstairs, the cathedral ceiling in the master bedroom creates a bright and airy retreat, complete with a dual vanity ensuite. With a 2-car garage and thoughtful finishes throughout, this home combines comfort and modern design in a prime location. Don't miss the opportunity to make this home yours
Location
State WI
County Jefferson
Zoning RES
Rooms
Kitchen Kitchen Island Main
Interior
Heating Natural Gas
Cooling Central Air, Forced Air
Equipment Dishwasher, Disposal, Microwave
Exterior
Exterior Feature Aluminum, Aluminum/Steel, Aluminum Trim, Stone, Brick/Stone, Vinyl, Wood
Parking Features Opener Included, Attached, 2 Car
Garage Spaces 2.0
Building
Sewer Municipal Sewer, Municipal Water
New Construction Y
Schools
Elementary Schools Lake Mills
Middle Schools Lake Mills
High Schools Lake Mills
School District Lake Mills Area
Others
Special Listing Condition Arms Length
Read Less
Want to know what your home might be worth? Contact us for a FREE valuation!

Travis Hamele
travishamelebroker@chime.meOur team is ready to help you sell your home for the highest possible price ASAP
Copyright 2025 WIREX - All Rights Reserved
Bought with Shine Realty

Travis Hamele





