
Travis Hamele
travishamelebroker@chime.meUPDATED:
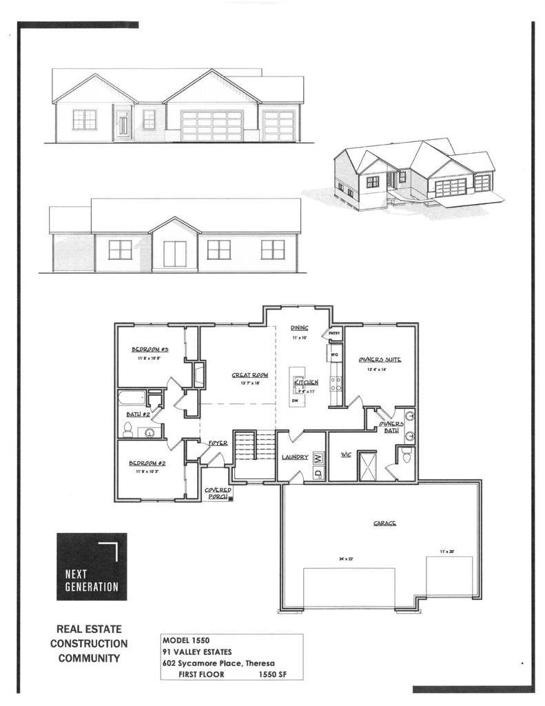
Key Details
Property Type Single Family Home
Sub Type Ranch
Listing Status Pending
Purchase Type For Sale
Square Footage 1,550 sqft
Price per Sqft $258
Subdivision Valley Estates
MLS Listing ID 1933093
Style Ranch
Bedrooms 3
Full Baths 2
Year Built 2025
Annual Tax Amount $513
Tax Year 2024
Lot Size 0.280 Acres
Acres 0.28
Property Sub-Type Ranch
Property Description
Location
State WI
County Dodge
Zoning Res
Rooms
Basement 8'+ Ceiling, Full, Poured Concrete
Kitchen Kitchen Island Main
Interior
Interior Features Cable/Satellite Available, Pantry, Simulated Wood Floors, Cathedral/vaulted ceiling, Walk-in closet(s)
Heating Natural Gas
Cooling Central Air, Forced Air
Inclusions Stove, Microwave, Dishwasher
Equipment Dishwasher, Microwave, Range
Exterior
Exterior Feature Stone, Brick/Stone, Vinyl
Parking Features Attached, 3 Car
Garage Spaces 3.0
Building
Dwelling Type 1 Story
Sewer Municipal Sewer, Municipal Water
New Construction Y
Schools
Elementary Schools Lomira
Middle Schools Lomira
High Schools Lomira
School District Lomira
Get More Information

Travis Hamele

